1
Anzahl der Objekte: 1 | 1
Obj.: 1 | 1

Exklusive Büroeinheit mit Balkon in der Regensburger Innenstadt

Musterfoto Bürofläche Regensburg
Musterfoto
2.572,07 €
NEU
 Bürofläche Regensburg
Musterfoto
 Bürofläche Regensburg

Objektart

Bürofläche

Adresse

93047 Regensburg

Objektdaten

Objekt-Nr. 798
Fläche (ca.) 207 m²
Räume 8
Kaltmiete 2.572,07 €

Informationen

bezugsfrei ab
ab sofort

Ausstattung

Gäste-WC

Details

Warmmiete (ca.)
2.987,02 €
Bodenbelag
Teppich
Wesentlicher Energieträger
Erdgas schwer

Die exklusive Mietfläche mit ca. 211 m² überzeugt durch ihre zentrale und äußerst verkehrsgünstige Lage in der Regensburger Fußgängerzone.

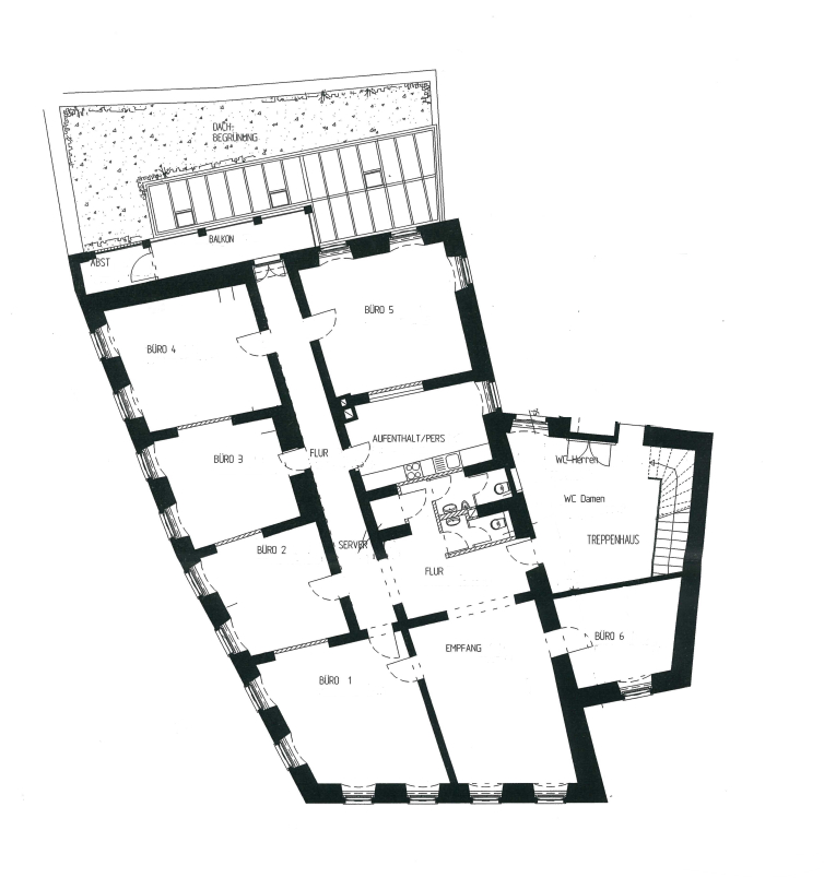
Die Büroeinheit befindet sich in einem modernen Büro- und Geschäftshaus und ist bequem über das Treppenhaus erreichbar. Sie umfasst insgesamt sechs helle Büro- und Besprechungsräume, einen Empfangsbereich, getrennte Damen- und Herren-WCs sowie Aufenthaltsräume.

Die Beheizung erfolgt über eine Gaszentralheizung mittels Heizkörpern.

Zur hochwertigen Ausstattung zählen Teppichboden, abgehängte Decken mit integrierter Beleuchtung, ein Glasfaseranschluss sowie vorbereitete Küchenanschlüsse. Ein attraktiver Balkon rundet das Angebot ab. Große Fensterflächen sorgen für eine angenehme, lichtdurchflutete Arbeitsatmosphäre. Sämtliche Räume sind vom Flur aus zugänglich.

Parkmöglichkeiten stehen in unmittelbarer Nähe in mehreren Parkhäusern zur Verfügung.

Obermeier Immobilien freut sich auf Ihre Anfrage!

Das Wichtigste im Überblick:

- Zentrale, sehr gut erreichbare Lage in der Regensburger Innenstadt (Fußgängerzone)
- Modernes, repräsentatives Büro- und Geschäftshaus
- Ca. 211 m² Mietfläche, verteilt auf 6 Büros, Empfang, Aufenthaltsbereich, Flur und Sanitärflächen
- 6 helle Büroräume (ca. 14 m² bis 30 m²)
- Großzügiger Balkon für Pausen
- Empfangsbereich vorhanden
- Getrennte Damen- und Herren-WCs
- Aufenthaltsräume vorhanden
- Gaszentralheizung über Heizkörper
- Teppichboden & abgehängte Decken mit integrierter Beleuchtung
- Glasfaseranschluss, Küchenanschlüsse vorhanden
- Große Fensterflächen / lichtdurchflutete Räume
- Parkhäuser in unmittelbarer Nähe

Weitere Informationen erhalten Sie auf Anfrage.

Die Immobilie befindet sich in der Fußgängerzone der historischen Altstadt von Regensburg.

Diese zentrale Lage bietet eine hohe Sichtbarkeit und ausgezeichnete Erreichbarkeit, sowohl für Bewohner als auch für Geschäftsinhaber.

Die Umgebung zeichnet sich durch eine Vielzahl an Restaurants, Geschäften und kulturellen Sehenswürdigkeiten aus, die den Standort sowohl für Mieter als auch für Gewerbetreibende attraktiv machen.

Eine ausführliche Standortanalyse erhalten Sie im Exposé.

Nach einer erfolgreichen Besichtigung erhalten Sie alle erforderlichen Objektunterlagen zur Einsicht und Planung. Alle Beratungs- und Verkaufsgespräche werden über unser Büro geführt. Der Energieausweis ist in Erstellung und liegt zur Besichtigung vor.

Mit Obermeier Immobilien haben Sie geprüfte Immobilienmakler (IHK) und DEKRA-zertifizierte Gutachter für Immobilienbewertung an Ihrer Seite. Wir agieren als Vermittler im Interesse aller Beteiligten.

Das Team von Obermeier-Immobilien freut sich darauf, Ihnen diese besondere Liegenschaft zeigen zu dürfen.

Ansprechpartner

Ansprechpartnerfoto Herr Raimund Scheuerer

Herr Raimund Scheuerer
Telefon: 0049941850801720
Mobil: 00491718452688
scheuerer@obermeier-immobilien.de
Mo-Fr von 8:00 Uhr bis 13:00 Uhr oder nach Vereinbarung

Objektanfrage

Sie haben noch Fragen zu dem Angebot oder wollen einen Besichtigungstermin vereinbaren, dann füllen Sie einfach das untenstehende Formular vollständig aus und wir setzen uns schnellstmöglich mit Ihnen in Verbindung.

* Pflichtfelder